农村自建

  自建房(民楼)和别墅的‘区别’,按‘观念’只是前者除了投入资金很少外,还要尊从很多由以前风水师指导所做所说的,并对这些一知半解,而产生的地方建造习俗,如左青龙右白虎,左上白马之类,左大右小,后方不留窗之类,这些一般来自建筑工人的口,实际上只是风水师为了让村民可以简单理解,及迷域神棍,而说的代用词,我也是个拜师学风水的,这么说是因为我知道,这些东西的来历及知识来源;很多看书学习风水的人对不上号,是因为没有理解或学的东西不够多,因为现在网上很多知识都可以查得到,因为师父教我的东西,很多时候都可以在网上找到相关或相似文献,没有找到的,也可以在考古节目中发现,只是网上渗假知识太多,混浊了您的视听;在这我告诉您,风水是固定的,人是活动的,两者结合在一起无法做到完美,例如把风水比喻成给你一条大路,但你却没发现和没走这条大路,所以对你是没有用的,因为有路通向你不一定是好事,说不定还是反效果,因为什么事都是对立的,第二时世也会把好变坏,因为有路就会引兵,有可能出现兵祸;所以风水师很难给你做出决则,我们看到的风水书一般是出自‘战时’和封建时代,所以大多风水知识以‘藏’为主,但在和平年代‘藏’是不利于发展的;

  设计民宅时,大多是给你多大乘多大的一块地,及朝向和大概做几层,因为资金投入少,很少人会请建筑设计,甚至也只是简单油一下墙就算了,而如何做都直接交给包工的工人,所以很多时候,只是要框架和简单的平面图纸就够了,画多他们也不会给你太多钱,而且工人也不会看你的图纸,以上一段为例,民宅很注重“风水”,所有风水的来历,只来自什么都不懂的工人及少数看日子的,总得来说,一般是:1、“左上白马”楼梯要在房左边;2、白虎要弱于青龙;3、一楼后墙不留窗;4、左边为大,右边小,主人要在左边;5、厨房上面不可以是主人房和厕所;6、神位上面、后面不可以睡人;7、任何门不对门;8、梁不压床;9、不对前屋的门窗;10、地台要高于别人;11、床头向里(局部地区及个人);12、床头要向高处(局部地区及个人),13、大门要高过窗;等片面风水知识,及非风水言论;现在好一点,看日子和地方土风水师,又学多了一点八宅和飞星,一知半解的他们,很重视五鬼、贪狼星,文昌位;慢慢地他们就以这些为主,与这些冲突时,他们都会新学的风水知识为主;这给了我用风水知识的机会,因为用真风水知识他们永远没我学的多,而且他们买本别人写的风水书,看下风水视频,很难了解核心知道,而且并不全面,所以我以教他们如果快速得到结果,学到东西的这些人,大只能说像我这么年轻的很少会风水了,他们只精于看日子;但也有部分以风水师身份去的,只能与不同派为由,坚持他所说过的话,因为表面上他是‘专业’的‘职业’的,因为业主请他看风水,请我只是设计,所以是不会信我的,如果我强行打击他们,做的好的是他们的功劳,不好的就是我的罪过,所以我只能看着这些地方性书本‘风水师’牵着我的鼻子走;但我这样我也落了个轻松,自己也有很多可以考究的负面例子,只是做多了,很多时候知道影响,自己都会偷偷加入一些其不好的对应化解方式,并叫业主去找其风水师咨询,毕竟我也想自己的业主好,因为设计这东西虽然工作量大,很多业主看不到明显的实物价值,所以给我支持,我要感恩;下面我以我做过的民宅用来示意一下吧;

建筑平面方案设计
建筑平面方案设计
  以上是以上业主为一家四口(含老人),由于男女主人有一定的年龄差,很爱女主人,一切以女主人做主,女主人看过多家公司的方案,对这个方案非常喜欢,当时我不在,是驻场人员拿平面方案给他看的,也没有任何解释,两天后约见并在接下来的很短时间签下了合同,因为有很多公司在争抢,不断的电话轰炸,没有在场就可以把业主带来,我曾为此为豪,虽然当时我作为设计总监,不直接签单,但在我的指导下,下面的设计签单量也很多,跑单量很少;至少在地区上虽不一定是第一,第二第三应还可以算的上;
  以上是刚从广州到东莞做的两套改一套,地产商样板房的设计平面图;
  这个时间要近一点,好像是2013的,地址是深圳,主人房衣柜很小,主要是公司职员做不出方案,才出手设计的,
以上宅地(自建)面积:12米宽*13米深;前飘1.6米,右、后各飘1.2米;一楼兼工人餐厅,二楼自住;地址茂名电白地区;2016年
  以上宅地(自建)面积:11米宽*13米深;前飘1.5米,厨房外建;地址茂名电白;2016年
  以上宅地(自建)面积:10米宽*10.25米深;地址茂名电白;2016年
  以上宅地(自建)面积:10米宽*12米深;左飘1.5米,前有门楼;地址茂名电白;2016年
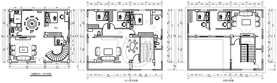
  以上宅地(自建)面积:20.30米宽*16.8米深;地址茂名电白;2016年
  以上宅地(自建)面积:9米宽*10.35米深;前飘1.5,最高弧飘2.25,右飘1.26米;地址茂名电白;2016年
  以上宅居(建筑非本人设计)面积:25米宽*16.5米深;门楼另飘;地址茂名电白;2015年
  以上宅地(自建)面积:13.430米宽*11.55米深;前飘1.7米,最高弧飘2.5;地址茂名电白;2015年
上一页:小区别墅
下一页:街道自建房
 
    我们专注于提升建筑与人的关系,善于挖掘住宅、休闲、商用空间潜在价值,尽显其最完善,最舒适的一面,……
    我们匠心显著,致力于研究建筑装饰工艺、材料、性能、规格完美拼合,结合高规格使用及环保提升等……,在这里除了常规施工精湛工艺,还有别人做不到的和不想做的;
    作为传统风水研究18年的一份子,我们尽情地为您对应讲述相关风水上的奥秘,以及恩师和各风水名家惯用的手法,不管是'伪科学'也好,'信以为真'也罢,我们选择尊重传统风水,去除相关没有依据的学术成分,案例理性还原风水本质;
  我们‘贵’在何方,相应的工艺,材料、技术、工艺、管理、工人、相对无后顾之忧的处理施工和售后协定,我们的价格,比任何公司,都敢说便宜……
设计及施工重点针对广东茂名地区,并少数项目现与全国各地区公司及个人展开合作;
ICP备案号: 粤ICP备14043747号 360网站安全检测平台