“建筑装潢·艺术至尚”,了解中国装修,从TATANI(她他你)开始,她他你中国;
   
 
复式跃式

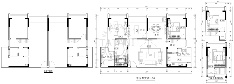
  复式和跃式住宅,首先住宅和工公类建筑是有区别的,主要是人际关系的不同,而这两种类别也别于平层住宅,因为它给了业主多一点的空间权力,及感觉;为什么这么说,就复式而言,是由两层以上房子贯穿在一起,跃式则是错层空间的组合;与别墅的内部空间有点相似,如复式中间有层楼板是在室内的,在调整上也有更多一些空间,毕竟目前建筑设计分为工民建和室内设计两块;室内设计参与建筑设计的还很少,当然酒店类除外,部分开发商也慢慢开始重视这一块,但投入比例很少,而且商业房的固定模式,很难做到适合每一个入户者,因此有所改动,也是很难避免的行为;作为室内设计出身的我,就有过很多从事建筑设计(土木工程、结构类)的业主,当然也包括室内设计师的业主也有;只是前者基本是全委托设计,后者则会多多少少加入自己的意见在里面,但在我眼里他们与普通业主是没有区别的;复式和跃式与平层的区别是空间关系,平层我们只要考虑天花和地面就可以了,而复式跃式则多了一个以上的非同层空间,也就是简单的说,多了个连接两个纵向空间的楼梯,而水电设置上也有了更多的选择性;现在开发商们为了节约成本,和瞄准了大部分客户,跃式建筑已经开始慢慢淡出人们的视线,但跃式比复式会更舒适、空间感也会好一些,因为跃式与复式相比,接连各层空间的楼梯少了很多,走起来也没这么累;其优点在于纵向空间层次感,及其分配的合理性,这些是平层建筑所缺少的,而平层因为空间高度有限,为了增加纵向空间层次,只能以地台和天花去做有限的处理,以增加纵向空间层次,及所在人的地位感;以前在校时老师说过:室内设计以阳光、空气、使用空间为三大要素,而后来我发现空间又分纵向和横向两种;以最近大家喜欢的评价‘高大上’为例子,在建筑室内设计上:高(纵向空间)、大(横向空间)、上(质感及色彩);能做到这三者结合的只有复式跃式;而复式跃式也只是平层的错差组合;只是提升平层纵向空间的代名词;以至别墅内部设计上,主要以复式、跃式为主、平层为次;所以设计复式或跃式,要充分考虑纵向空间的关联及过渡设计,这也是所谓家装设计师,进入别墅设计的必要过渡经验;如果没有复式和跃式经验,设计别墅室内时都面临经验不足,但从平层室内设计,到设计商品房复式、跃式却很简单;因为到设计别墅时,是要里360度*360度+外360度*360度的,如果没有这方面的经验会很累;

  2005年东莞
  2005年东莞0769;
  2009年梅州,跃式建筑单数层与双楼层设计结构区别很大,这是单数层,双数层样板房也是我之前设计的;当时因为房间小,所以开发商要求两套改一套,这个方案做出来,开发商很喜欢,并马上找来建筑工程部审核,在并在技术的审核下,通过了方案,只是那套双层的设计方案没找到;这一套就是在那套的下面;上面为双层单梯,而下去的是小房间,因为很小,变化不大就不发了;
  2009年梅州,这是单数层,后续方案;
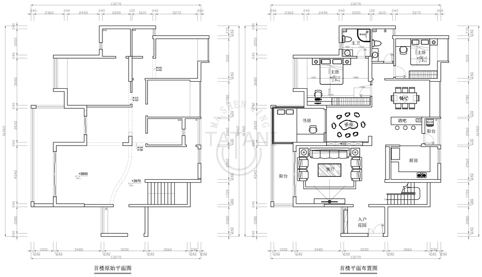
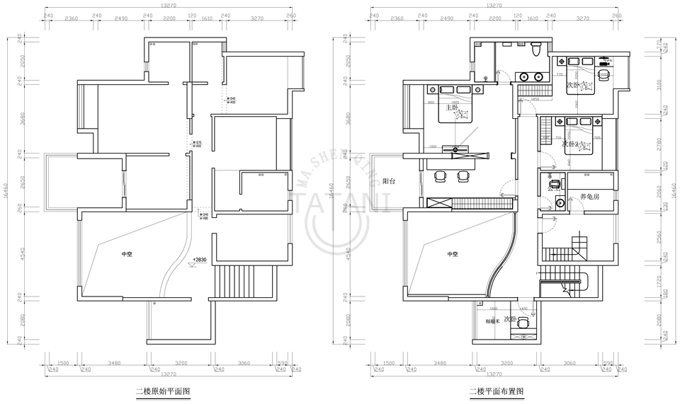
  茂名某地2013年(因为客户的隐私,某些信息不可以讲太清楚);
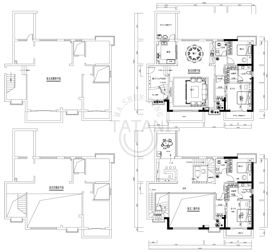
  茂名某地2014年,复式首层平面图
  茂名某地2014年,二层平面图
上一页:小区商品房
下一页:自建别墅
 
    我们专注于提升建筑与人的关系,善于挖掘住宅、休闲、商用空间潜在价值,尽显其最完善,最舒适的一面,……
    我们匠心显著,致力于研究建筑装饰工艺、材料、性能、规格完美拼合,结合高规格使用及环保提升等……,在这里除了常规施工精湛工艺,还有别人做不到的和不想做的;
    作为传统风水研究18年的一份子,我们尽情地为您对应讲述相关风水上的奥秘,以及恩师和各风水名家惯用的手法,不管是'伪科学'也好,'信以为真'也罢,我们选择尊重传统风水,去除相关没有依据的学术成分,案例理性还原风水本质;
  我们‘贵’在何方,相应的工艺,材料、技术、工艺、管理、工人、相对无后顾之忧的处理施工和售后协定,我们的价格,比任何公司,都敢说便宜……
设计及施工重点针对广东茂名地区,并少数项目现与全国各地区公司及个人展开合作;
ICP备案号: 粤ICP备14043747号 360网站安全检测平台